IMG_COZINHA(5).jpg.png

Apartamento - CF

Remodelação de Apartamento em Chelas , Lisboa

Vista da Cozinha

p12-chelas7_COZINHA2.jpg
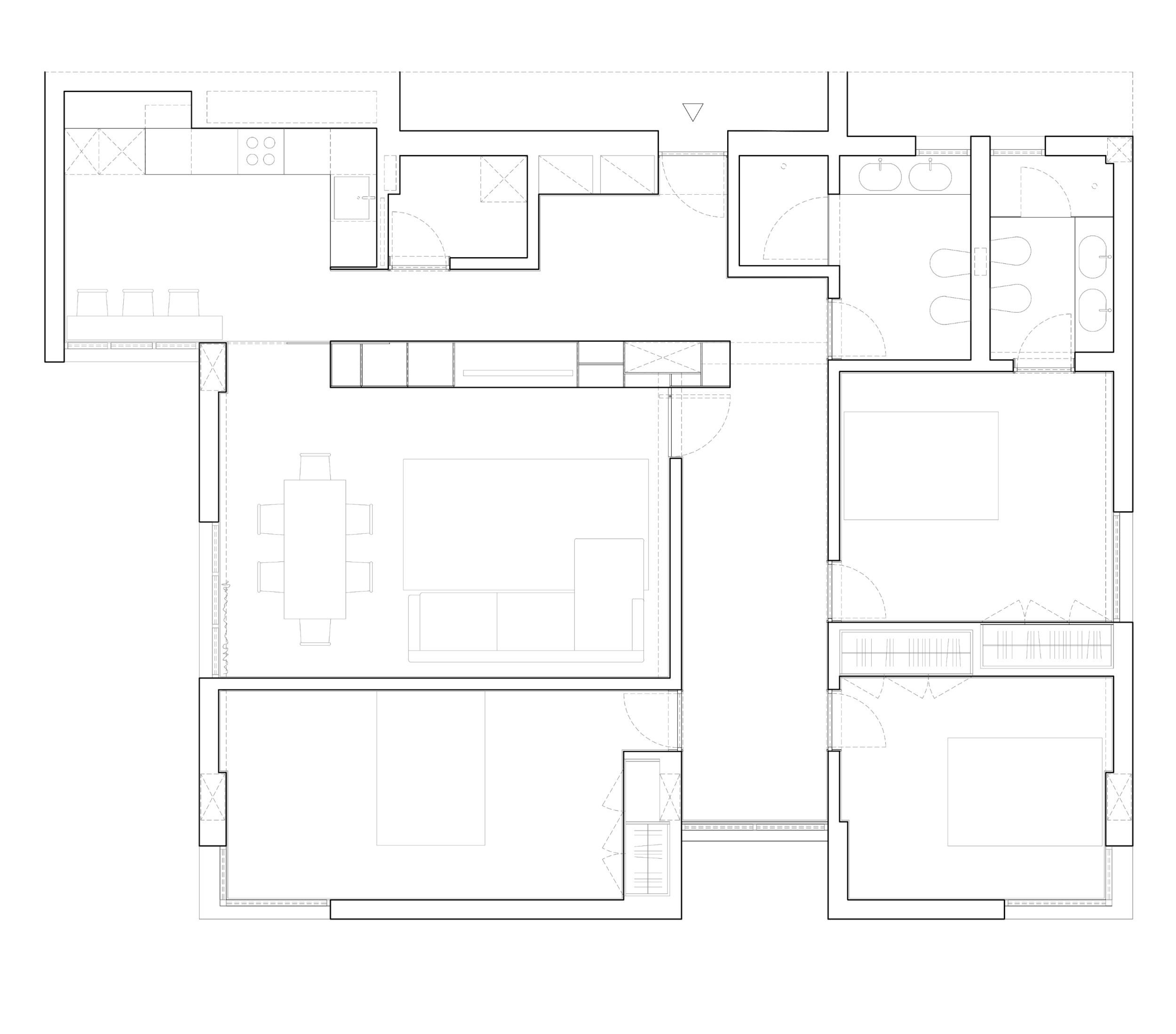
Planta (Layout Geral - Proposta)

Planta (Layout Geral - Proposta)

Apartamento - CF

Remodelação de um Apartamento em Chelas, Lisboa.

Cliente Privado
Local Lisboa, Portugal,
Área Bruta 134 m² 
Fase Execução

Ano 2018

Imagens 3D | tejocollective

________________

Descrição do Projecto:

Remodelação de um Apartamento em Chelas, Lisboa.